As part of the Interior Design course, I designed an apartment for an iconic figure: David Bowie in his later years. The concept draws from his eclectic identity, marked by bold contrasts, theatrical presence, reinvention, and a strong connection to fashion. These qualities were translated into spatial principles that shape the interior.
4rd year | first semester | Interior design studio

floor plan | 1:100 | ​​​​​​​A diagonal axis breaks the classical grid, while furniture replaces walls to blur private and public

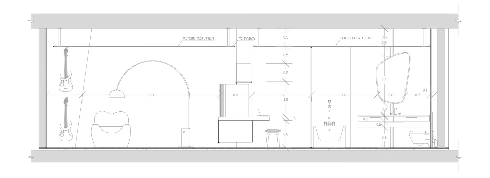
Section AA | 1:100 | Floating volumes create dramatic vertical contrasts

section AA | 1:100 | The dramatic wardrobe axis links the spaces, guiding movement like a fashion runway

Section CC | 1:00 | A blended identity: the multifunctional kitchen with floating elements blurring private and public

You may also like

Back to Top